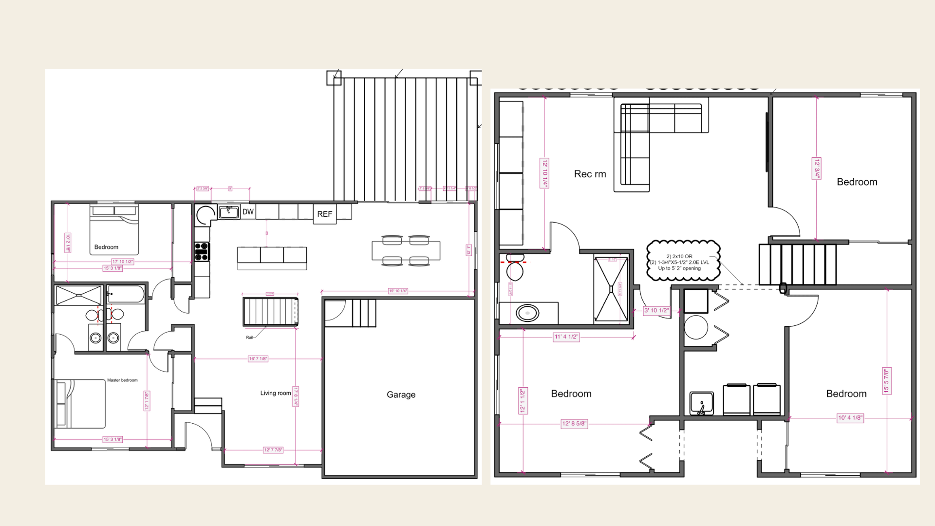
Vassar Ave
Your entire home should make an unforgettable impression.
Laurelless offers whole home remodels starting at $100k across the Denver Metropolitan Area. From layout redesigns to custom finishes, we create cohesive, luxurious spaces that reflect your lifestyle and elevate how you live.































































